浙江聚英环保科技有限公司为您主要提供一体式滤筒除尘器,厨房油烟净化装置,焊接除尘设备,焊接烟尘净化设备等相关的展示和信息更新,欢迎您的收藏。
涂料在我国有漫长的发展史,随着我国涂料行业发展的愈发壮大,污染也随之扩大产生。目前涂料行业涉及的污染包括:废水、废气、粉尘、固体废弃物、氨氮等。涂料废气主要源于生产过程中使用的有机溶剂及稀释剂,涂膜形成后,有机挥发物进入大气,涂料中的废气有害物质会导致空气质量下降,损害人体健康。

本期给大家分享广东某复合材料有限公司车间废气收集治理项目,一起了解聚英环保对于车间废气收集治理项目细节把控。
【项目信息】:
广东某复合材料有限公司主要生产增材制造及激光制造设备的制造;增材制造及激光制造设备的销售;航空、航天相关设备制造等。企业在涂漆过程、树脂施工过程产生的有机废气通过有组织收集,经过环保设备净化处置后达标排放达标。
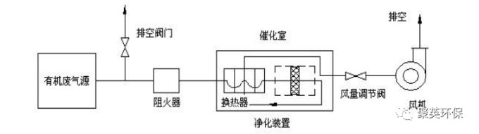
【废气处理工艺】:
废气经过管道收集后进入缓冲管内做匀风处理,匀风后风废气在负压引风机的作用下进入经过干式过滤箱内部初效及高效过滤后,进入处理系统:活性炭吸附脱附催化燃烧净化设备。
工艺流程图:
管路收集 → 干式过滤 → 活性炭吸附脱附催化燃烧设备→达标排放
【设备原理】:
由环保离心风机将大风量、低浓度有机废气吸入活性炭吸附床,在吸附床内与多层蜂窝状活性炭充分净化(吸附),活性炭内部逐渐富集浓缩大量有机废物,而洁净的气体则排入大气;通过燃烧装置产生的高温气体经换热之后通入活性炭吸附床,使内部有机废物90℃高温气化从活性炭孔隙中逸散而出,此时的废气浓度远远高于初始吸附的废气浓度,然后进入催化燃烧装置(350℃)进行氧化分解成CO2 和H2O等无害气体,气体经由热交换器将热量传递再次用于脱附,然后排入大气,以此完成一整套净化流程。
本项目收集效率>93,净化效率>95.燃烧形成的二氧化碳和水通过末端引风机的负压作用下,离地 15 米高空达标排放。
现场照片

一体式滤筒除尘器怎么样?厨房油烟净化装置哪家便宜?焊接除尘设备哪家好?浙江聚英环保科技有限公司主要提供一体式滤筒除尘器,厨房油烟净化装置,焊接除尘设备,焊接烟尘净化设备
Copyright©www.gelitegroup.com ( 点击复制 )浙江聚英环保科技有限公司 备案号:浙ICP备15038850号-1 浙公网安备:33060402000164